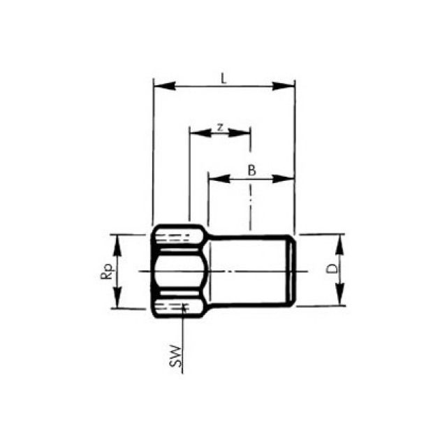
3268, Instaflex, Tappo interno lungo

Produttore GF Sistema Instaflex
Trovato: 2
2 da 2
D
Rp